為推動高質量創新發展、打造核能新質生產力,由中國能源研究會、中國廣核集團有限公司聯合中核集團、國家電投、中國華能、中國大唐、國家能源集團共同主辦的“2024第三屆中國核能高質量發展大會暨深圳國際核能產業創新博覽會”(以下簡稱“深圳核博會”),將于11月11-13日,在深圳會展中心(福田)隆重召開。

本屆深圳核博會將延續往屆高標準、大規模、高規格特點,持續打造世界一流核展,展出面積60,000平方米,海內外參展商超600家,覆蓋全球前沿的核科技創新成果以及完整的核電產業鏈。大會同期還將舉辦近20場產業、應用、國際及學術論壇,涵蓋先進裝備與產業鏈、先進建造、在役檢查、智慧運維、冷源安全、先進核材料、環保技術、數字化、安全生產績效、核技術、先進核能等領域,匯聚萬余位行業同仁,共商核能高質量發展大計,共繪核電可持續發展藍圖,為中國乃至世界核電產業的高質量發展匯聚行業智慧。
作為本屆深圳核博會重要展商,成都中子新科技有限公司將攜帶一系列高新產品和應用方案震撼亮相。展位位于1號館H135號展位,歡迎蒞臨交流。
公司簡介
成都中子新科技有限公司是我國最早從事氣體凈化研究和生產的單位之一,他的前身是國營成都半導體材料廠,公司技術力量雄厚,擁有先進的生產工藝和流程及多項專利技術,自1974年研制開發氣體凈化與處理系統產品至今有40年歷史。屬自主知識產權,民族工業。

氣體監測、凈化與處理系統相關產品,有七個系列近百種規格,包括氣體凈化裝置(系統)、變壓吸附裝置、膜制(氫、氮、氦...)裝置、特氣柜、無泄漏不銹鋼波紋管閥門、高效全金屬過濾器、阻火器、匯流排、電化學內拋光的304、316L材質的不銹鋼EP長管道、及相應的三通、彎頭和內外拋光的高純氣體緩沖器(罐)等。并承接特種氣體(氫及同位素、氧、氯化氫、硅烷、氯氣...)管道及全系統安裝工程。
公司所產的各型氫(氕氘氚)、氧、氮、氬、氦等氣體監測、凈化與處理系統均安裝了完善的自動控制(監測)系統,機械部件采用自主知識產權的EP級的不銹鋼長管道、不銹鋼波紋管閥門和不銹鋼過濾器等,確保系統裝置長期穩定、安全可靠的運行。
公司產品廣泛應用于清潔(氫及同位素(新))能源、國家自主芯片、超潔凈氣體、半導體、電子氣體、超高真空、核電、核軍工、航空航天、鋼鐵、醫藥衛生、食品等行業。
公司生產地位于四川成都市高新西區百川路12號工業園內,周圍環境潔凈優雅、交通方便。我公司以“質量第一、用戶至上”為宗旨,為用戶提供優質服務。公司秉承高質量的發展宗旨,服務于社會,努力在傳承、融合、發明創新中不斷展現新面貌,新局面,拓展新空間,竭誠歡迎新老客戶的關注與合作。
Chengdu Neutron New Technology Co., Ltd. is one of the earliest units engaged in gas purification research and production in China, his predecessor is the state-owned Chengdu Semiconductor Material Factory, the company has strong technical force, with advanced production processes and processes and a number of patented technologies, since 1974 research and development of gas purification and treatment system products so far has 40 years of history. It belongs to independent intellectual property rights, national industry.
Gas monitoring, purification and treatment system related products, there are seven series of nearly 100 kinds of specifications, including gas purification device (system), pressure swing adsorption device, membrane production (hydrogen, nitrogen, helium...) Device, special gas cabinet, non-leakage stainless steel bellows valve, high efficiency all-metal filter, flame arrester, bus bar, electrochemical internal polished 304, 316L material stainless steel EP long pipe, and the corresponding tee, elbow and internal and external polished high purity gas buffer (tank) and so on. And undertake special gases (hydrogen and isotopes, oxygen, hydrogen chloride, silane, chlorine...) Pipeline and whole system installation works.
Each type of hydrogen (protium), oxygen, nitrogen, argon, helium and other gas monitoring, purification and treatment system are installed with perfect automatic control (monitoring) system, mechanical parts with independent intellectual property rights of EP grade stainless steel long pipe, stainless steel bellows valve and stainless steel filter, etc., to ensure long-term stable, safe and reliable operation of the system device.
The company's products are widely used in clean (hydrogen and isotope (new)) energy, national independent chip, ultra-clean gas, semiconductor, electronic gas, ultra-high vacuum, nuclear power, nuclear military, aerospace, steel, medicine and health, food and other industries.
The production place of the company is located in the industrial park, No. 12 Baichuan Road, High-tech West Zone, Chengdu City, Sichuan Province, with clean and elegant surrounding environment and convenient transportation. Our company takes "quality first, customer first" as the purpose, to provide users with quality services. The company adhering to the high quality of the development purpose, service to the society, and strive to inheritance, integration, invention and innovation constantly show a new look, new situation, expand new space, sincerely welcome new and old customers attention and cooperation.

公司主營產品與技術特點
【公司主營產品】
氚(氕氘氫)監測、凈化與處理系統技術特點
工藝流程先進適用,環保節能,可根據需要處理含氚(氕氘氫)氣體到合格排放標準,氚(氕氘氫)的凈化分離(色譜)可到9N(99.9999999%)及以上,系統氦漏率達10-9Pa.m3/s,模塊化、單元化設計,廣泛用于科研、高校、半導體芯片、核電、核軍工、航空航天等領域。

氚(氕氘氫)監測、凈化與處理系統1

模塊、單元化氚(氕氘氫)監測、凈化與處理系統2

模塊、單元化氚(氕氘氫)監測、分離與處理系統(大型色譜系統)3
氚(氕氘氫)監測、凈化與處理系統所使用的主要核心零部件均自主生產制造,不受制于人。
(1)316L EP長管道及先進的焊接技術

【主要特點】: *表面平整如鏡面-肉眼看起來發黑(鏡面反射的原因)提高工件表面光潔度,Ra≤0.08μm。 *金屬表面形成化學性質非常穩定的惰性鈍化膜+6價Cr2o7-2的氧化物,最大限度地阻止了氫及同位素原子進入金屬內部造成缺陷(氫脆等)。 *減小摩擦系數(提高表面硬度使金屬的電子冷發射能力下降),大大降低了金屬表面對雜質氣體分子的吸附能力。 *由于表面有保護層,金屬原子沒有直接暴露在外,大大提高了耐腐蝕性能。 *帶有還原性氣體內外保護焊接使焊縫內外成型好,不夾渣,不鼓泡。
(2)閥門



(3)氚及同位素放射性電離測量傳感器

【主要特點】: *傳感器外部全部為金屬殼體密封屏蔽,耐電壓1000V。 *傳感器密封腔體最大可承受1.0MPa氣體壓力。 *傳感器對氣體(含放射性氣體)低泄漏(真空氦檢可達10-10Pa.m3/s)。 *自潔凈能力強,即使被放射性污染后可通過吹掃后多次重復使用。
(4)過濾器

【主要特點】: *采用了全金屬的濾芯,不銹鋼過濾器耐高溫,最高耐溫達800℃。 *濾芯采用高真空粉末冶金而成過濾精度最高可達0.3μm。 *由于采用了金屬芯,過濾器可以反吹除所阻擋的塵埃,可長期不用更換濾芯反復使用。 *低泄漏率(真空氦檢可達10-10Pa.m3/s)。 *高耐壓,最大可達12.0MPa。
(5)阻火器

【主要特點】: *整體結構為不銹鋼材料(316L或304)防腐耐蝕性能優良,大大提高使用壽命。 *采用多層多種不銹鋼微孔和網格結構,除達到本身以吸熱降低燃點方式阻火防止回火(阻火方式只有隔絕氧和降低燃點方式)功能外,還起到初效過濾器的作用,可有效解決大的塵埃顆粒倒灌且室外安裝時可有效防止蚊蟲。 *由于采用了全不銹鋼材料方便進行潔凈處理,使產品可用于超高潔凈環境的氣源終端。 *采用不銹鋼材料使與管道的連接形式靈活多變,可方便地引入最流行的VCR、全金屬卡套等連接方式 *低泄漏率(真空氦檢可達10-10Pa.m3/s)。 *高耐壓,最大可達15.0MPa。
(6)其他

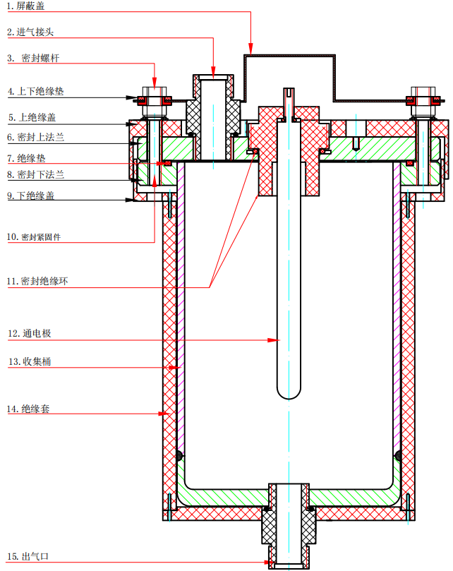
其他輔助產品如減壓閥、氣體緩沖器、氣體收集罐、真空罐、取樣氣瓶、VCR接頭,普通氣體監測與凈化處理裝置系統均自主知識產權,自主生產制造。

2023深圳核博會現場
11月11日-13日,第三屆中國核能高質量發展大會暨深圳國際核能產業創新博覽會“核”您相約,共聚鵬城!成都中子新科技有限公司歡迎各位屆時蒞臨展位咨詢洽談。
大會組委會電話:
010-67808008/010-68808008


